我的植物

 找回密码
 立即注册

QQ登录

只需一步,快速开始

查看: 79|回复: 0

[别墅] T93

[复制链接]

8万

主题

52

回帖

7819

积分

管理员

Rank: 9Rank: 9Rank: 9

积分
7819
发表于 2023-11-4 15:25:07 | 显示全部楼层 |阅读模式
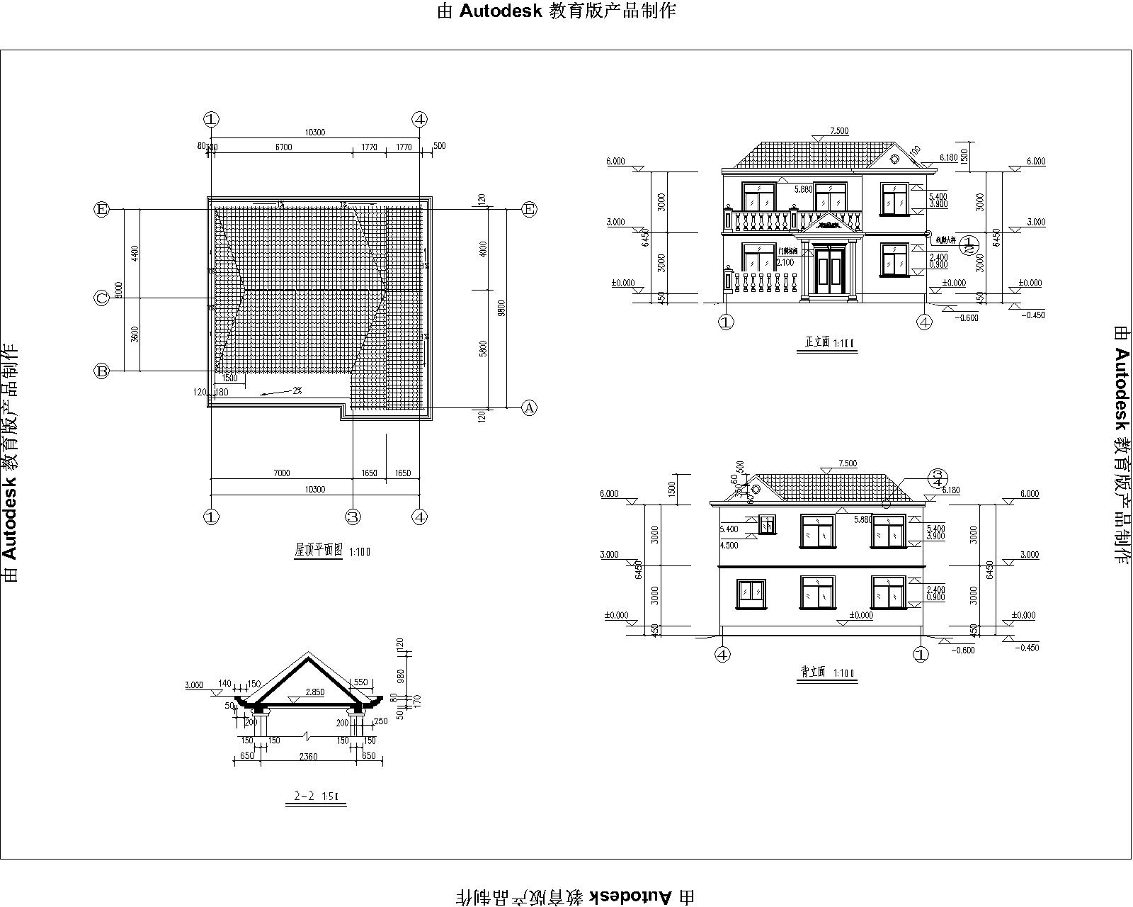
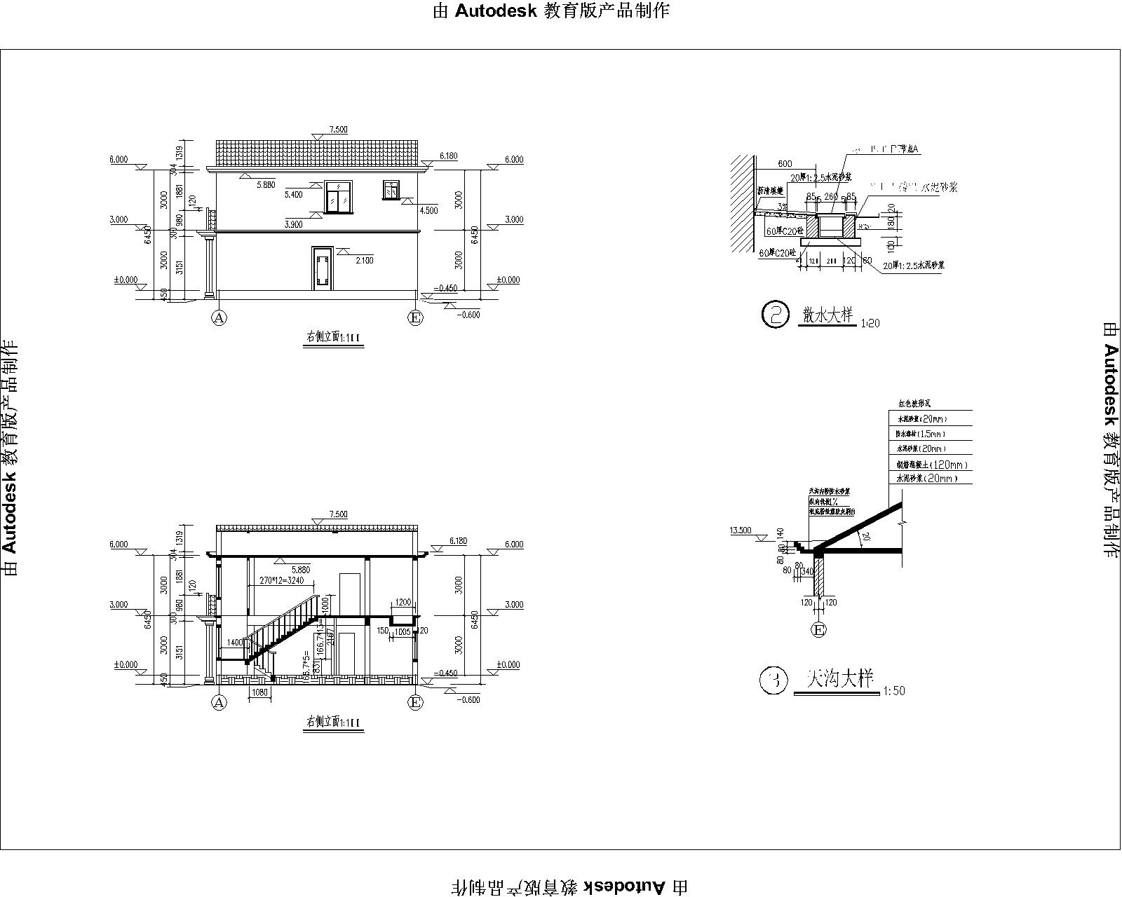
本户型为二层独栋别墅,总建筑面积176.68平米,占地面积98平米,建筑总高度7.5米,一楼设有走廊、门厅、客厅、厨房、卫生间、卧室2间;二楼主卧室、卧室1间、卫生间2间、书房、客厅、大阳台。
本户型采用坡屋顶,红色波形瓦色彩明快,外观造型简洁大方,采光通风良好,空间利用率高。


说明:本施工图是用autocad2004+天正建筑7.5工具设计,查看时需要有天正插件,否则数据及里面的布局是看不到的。
效果图-大副本.jpg
施工图-1.jpg
施工图-2.jpg
施工图-3.jpg
施工图-4.jpg
您需要登录后才可以回帖 登录 | 立即注册

本版积分规则

Archiver|手机版|小黑屋|网站地图|我的植物 ( 京ICP备15066774号-2 )|网站地图

GMT+8, 2026-3-24 06:24 , Processed in 0.032406 second(s), 31 queries .

Powered by Discuz! X3.4

© 2001-2023 Discuz! Team.

快速回复 返回顶部 返回列表