我的植物

 找回密码
 立即注册

QQ登录

只需一步,快速开始

查看: 244|回复: 0

[别墅] T46

[复制链接]

8万

主题

52

回帖

7819

积分

管理员

Rank: 9Rank: 9Rank: 9

积分
7819
发表于 2023-11-4 15:26:53 | 显示全部楼层 |阅读模式
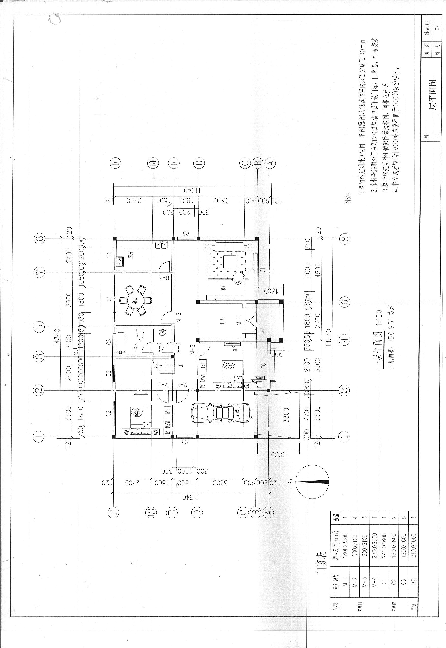
建筑物占地面积:150.95平方米,建筑面积:279.93平方米;建筑层数:二层

框架结构

本套别墅设计资料效果图为JPG格式,施工图为DWG格式,均可用A3或者A2纸张打印出图!

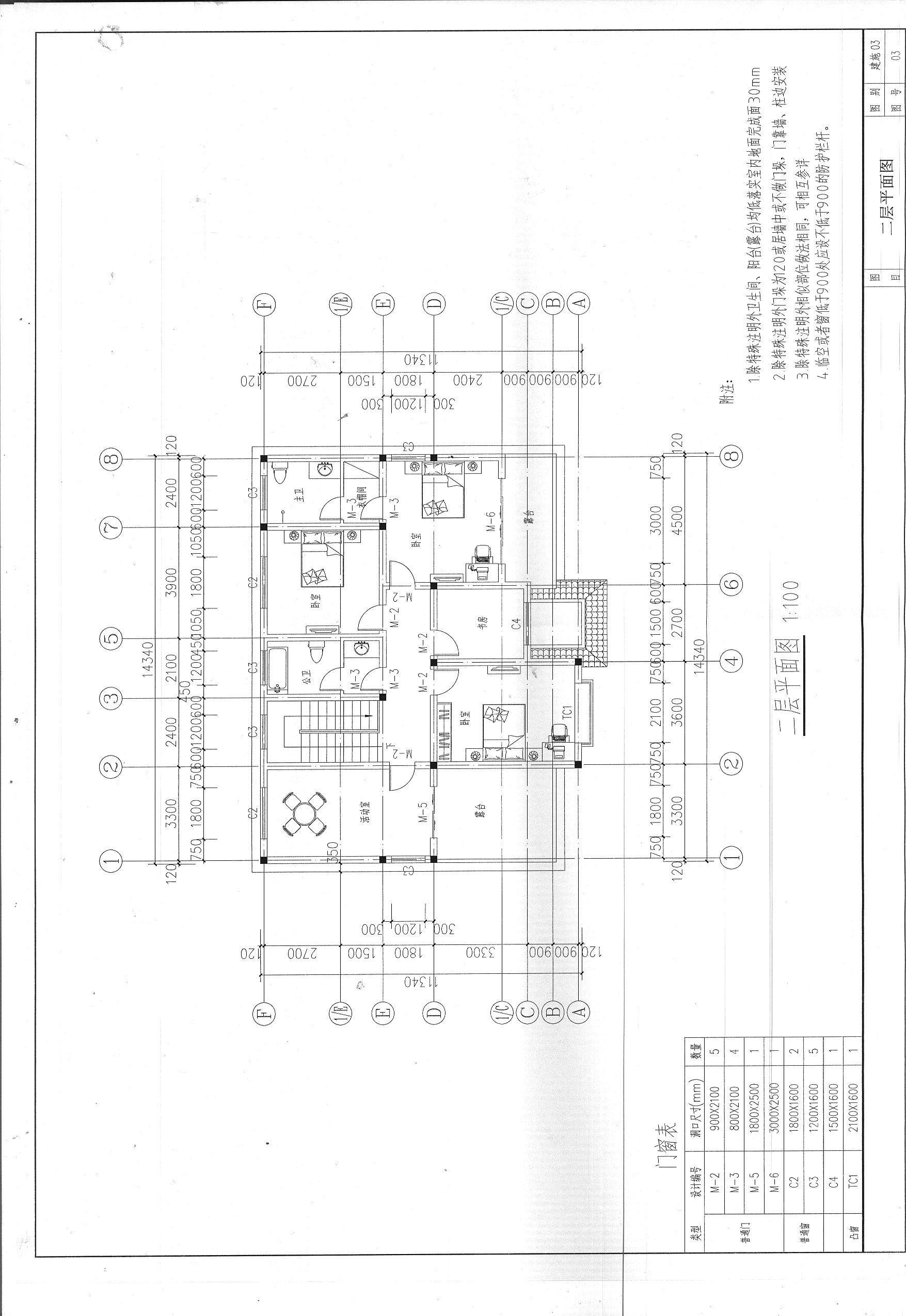
门面宽14.34米*进深11.34米


户型为单家独院式,占地面积150.95平方米,居住建筑面积279.93平方米,框架结构。一层设有门厅、客厅、卧室2间、卫生间、车库、厨房、餐厅;二层设有主卧室带衣帽间、卫生间、露台,卧室2间,卫生间、活动室带露台、书房。

本户型采用坡屋顶,外观造型简洁大方,色彩明快,房间尺度设计适宜,空间利用率高,富有时代气息。



本套图纸有施工图38张,效果图1张,打印(效果图为彩图,施工图为A3大图)

开间:14.34米,进深:11.34米,占地面积:150.95平方米,建筑面积:279.93平方米;

图纸目录:建筑设计说明、一层平面图、二层平面图、屋顶平面图、正立面图、背立面图、左立面图、右立面图、门窗表、楼梯平面图、1-1剖面图、节点详图;
结构设计说明、基础平面布置图、基础详图、一层柱结构平面图、屋顶柱结构平面图、一层梁结构平面图、屋顶梁结构平面图、一层结构平面图、屋顶结构平面图、楼梯结构图;

给排水设计说明、一层给排水平面图、二层给排水平面图、屋顶给排水平面图、给排水系统图;
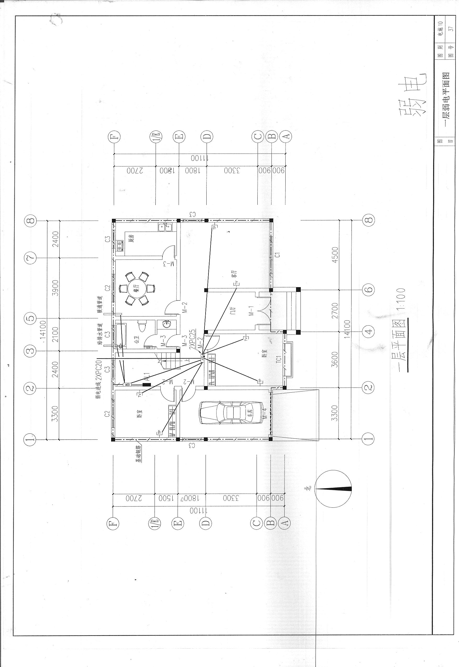
电气设计说明与图例、配电系统图、弱电系统图、总等电位联结端子板作法、等电位联结端子作法、局部等电位联结作法、总等电位联结系统图、一层照明平面图、二层照明平面图、一层插座平面图、二层插座平面图、一层弱电平面图、二层弱电平面图、效果图等。

设计功能:一层:门厅、客厅、2卧室、厨房、餐厅、卫生间、车库;二层:活动室(附露台)、主卧室(附衣帽间,卫生间,露台)、2卧室、书房、卫生间。


参考造价:28万左右。

一层平面图02.jpg
一层弱电37.jpg
一层插座35.jpg
一层柱结构图13.jpg
一层梁结构15.jpg
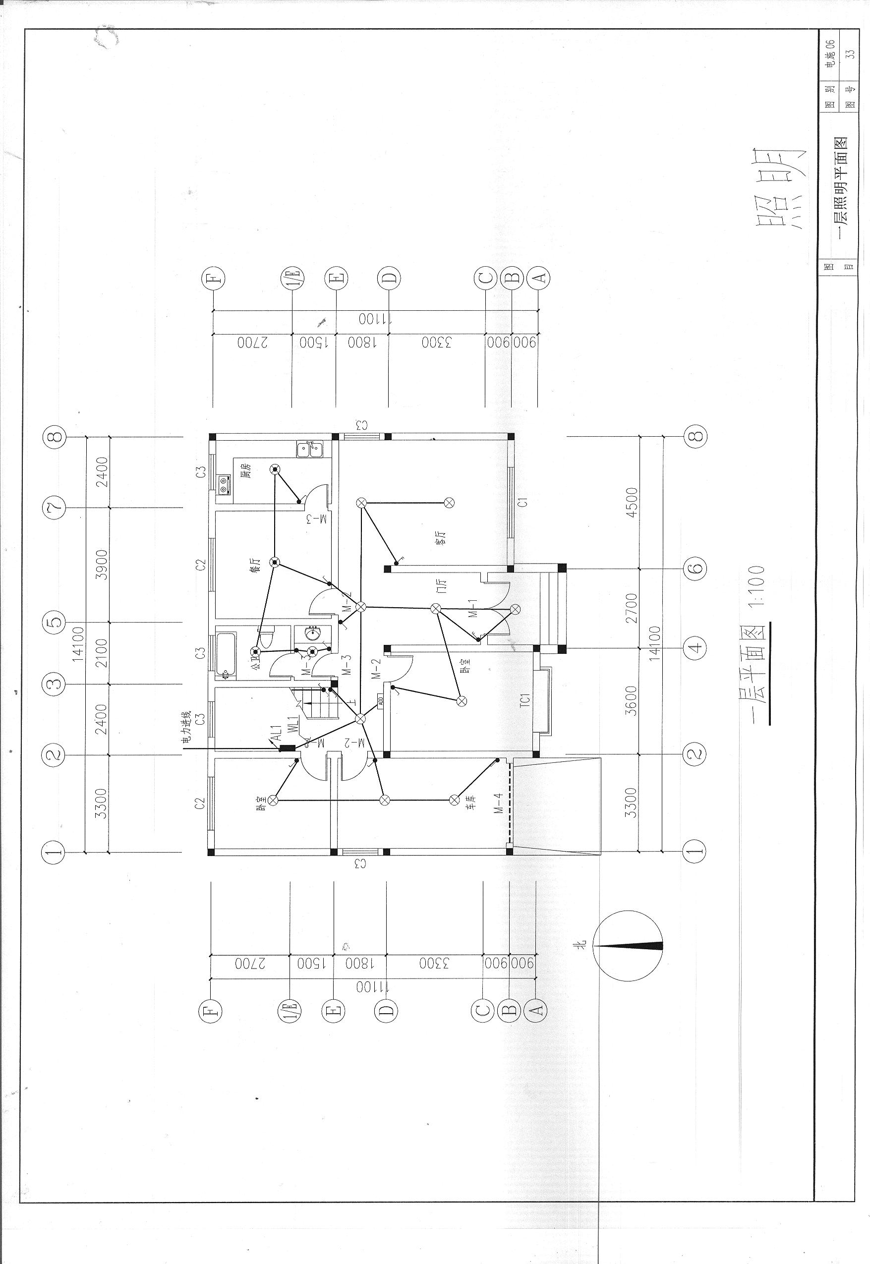
一层照明33.jpg
一层结构平面图17.jpg
一层给排水平面图24.jpg
东立面图07.jpg
二层平面图03.jpg
二层弱电38.jpg
二层插座36.jpg
二层楼梯平面图09.jpg
二层照明34.jpg
二层给排水25.jpg
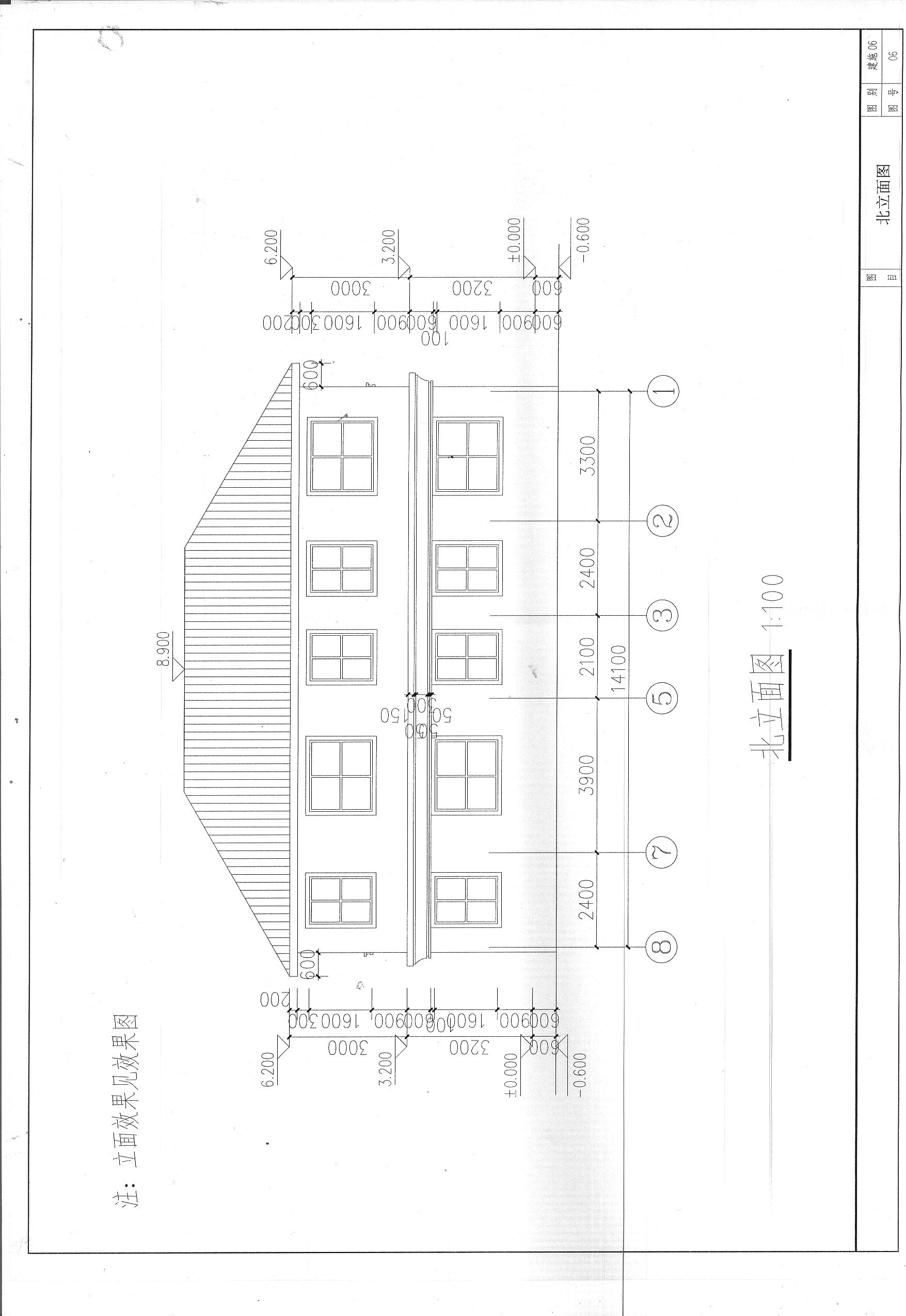
北立面图06.jpg
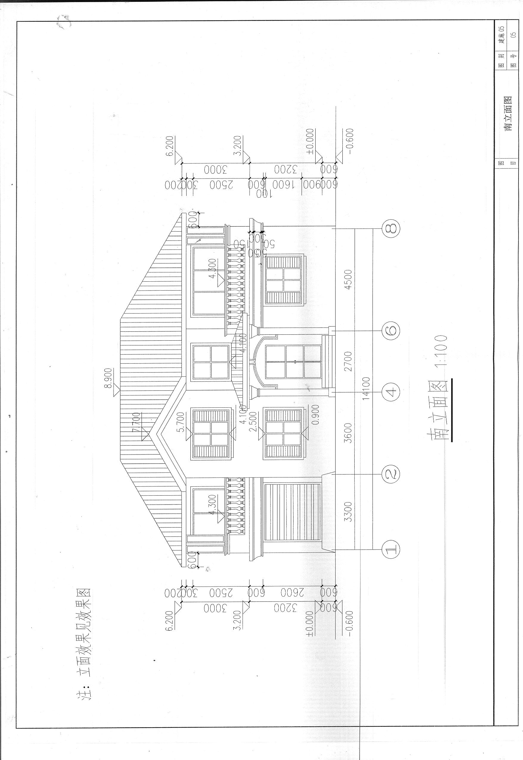
南立面图05.jpg
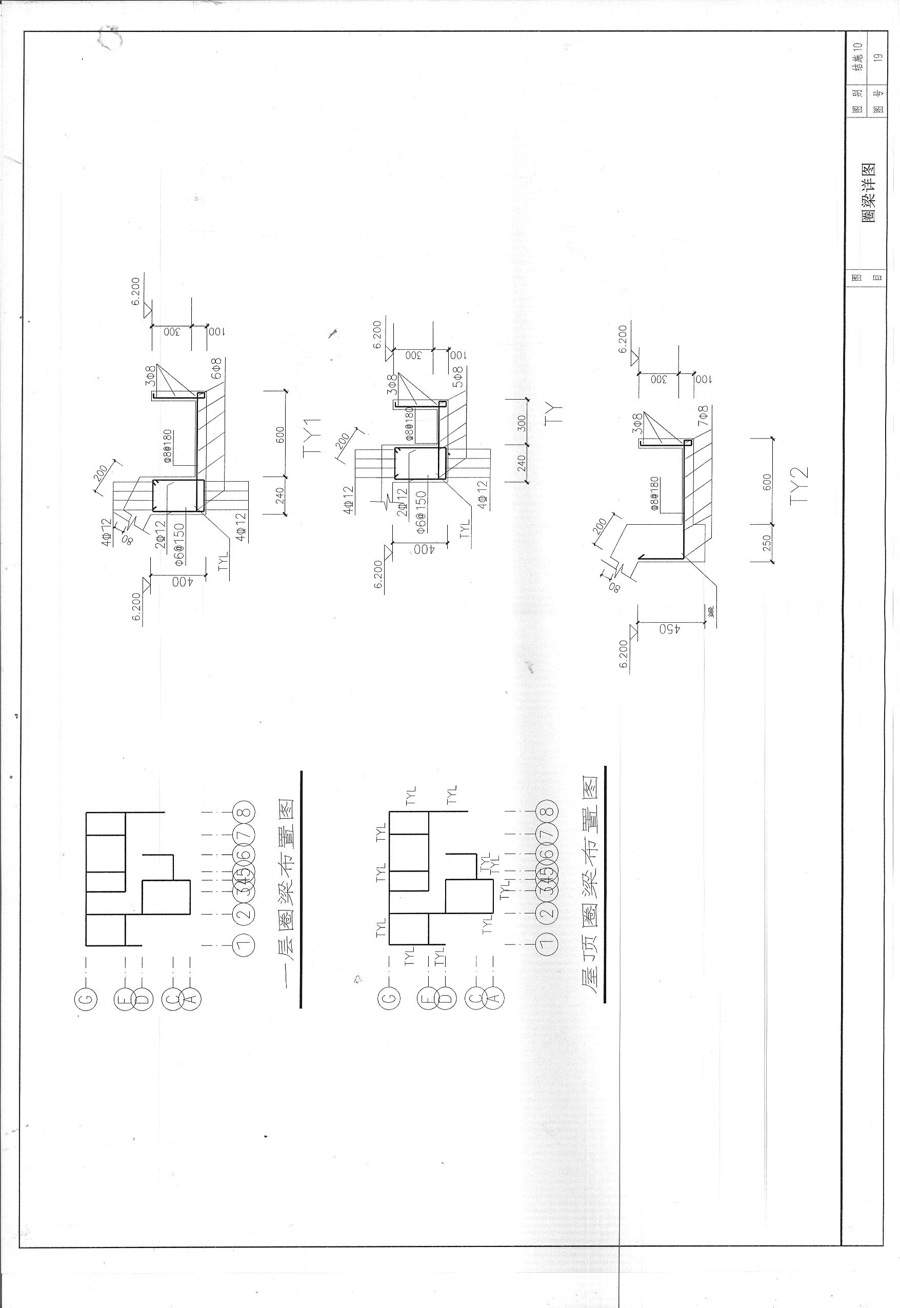
圈梁详图19.jpg
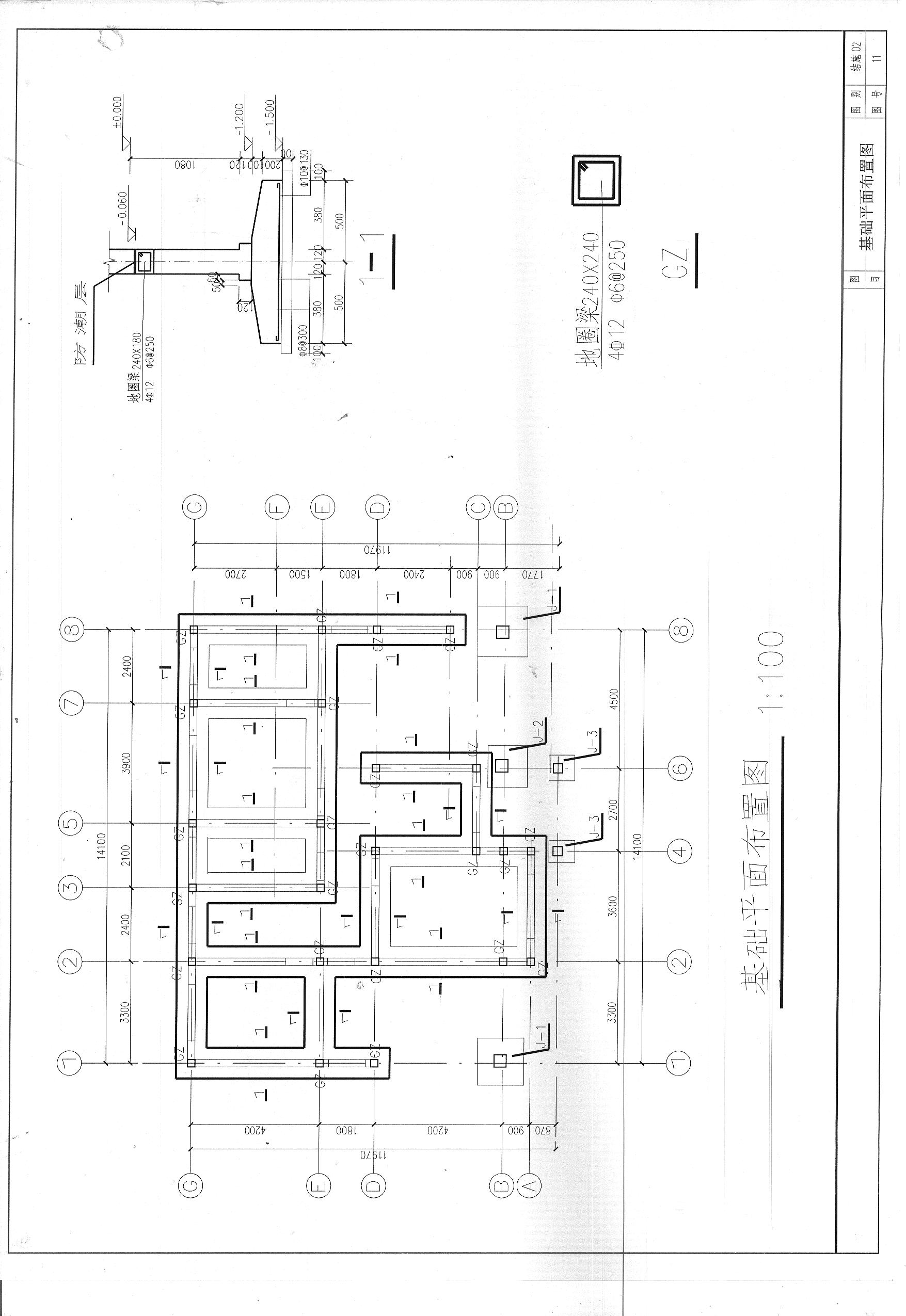
基础平面11.jpg
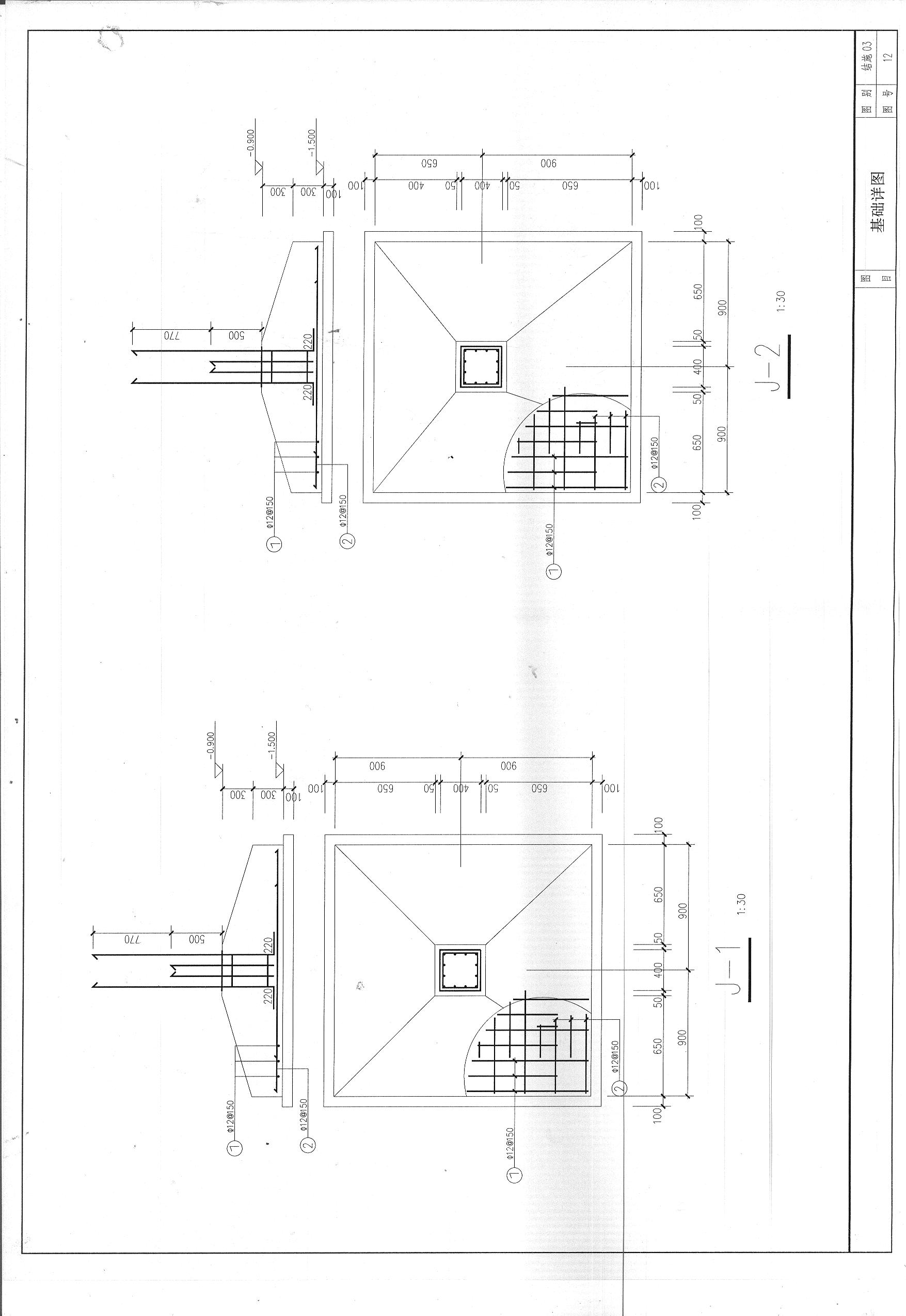
基础样图12.jpg
局部等电位31.jpg
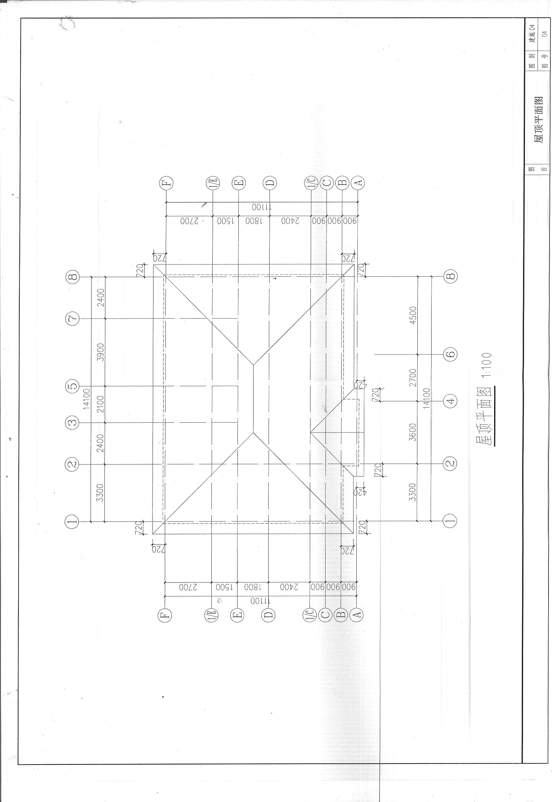
屋顶平面图04.jpg
屋顶柱结构14.jpg
屋顶梁结构16.jpg
屋顶结构平面图18.jpg
屋顶给排水26.jpg
总等电位30.jpg
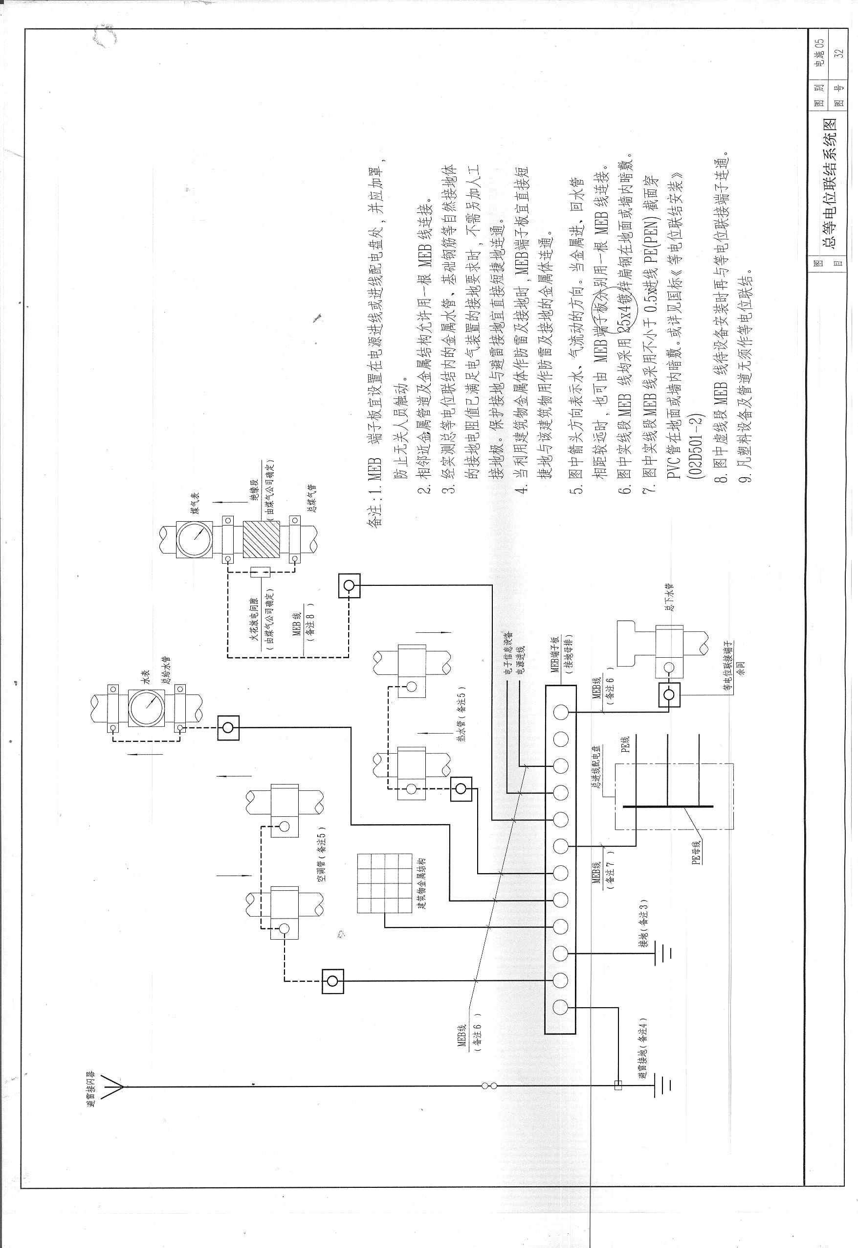
总等电位联结32.jpg
效果图1.jpg
效果图2.jpg
施工说明01.jpg
楼梯结构图一20.jpg
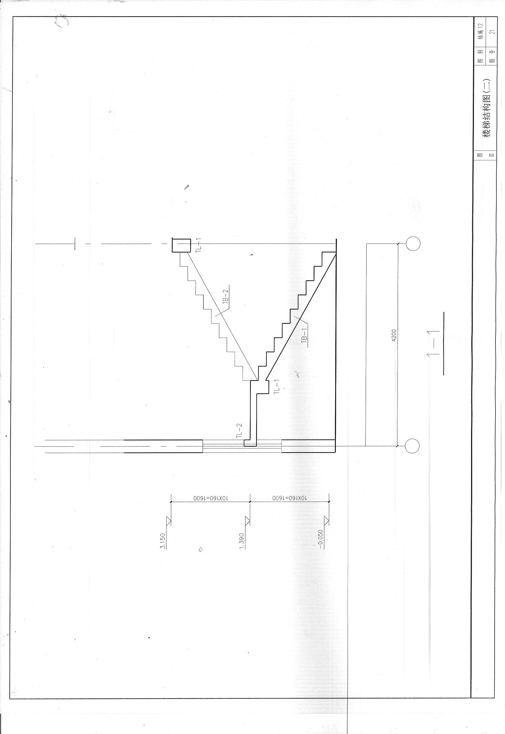
楼梯结构图二21.jpg
电气设计说明28.jpg
结构设计说明10.jpg
给排水系统图27.jpg
给排水设计说明22.jpg
给排水设计说明二23 001.jpg
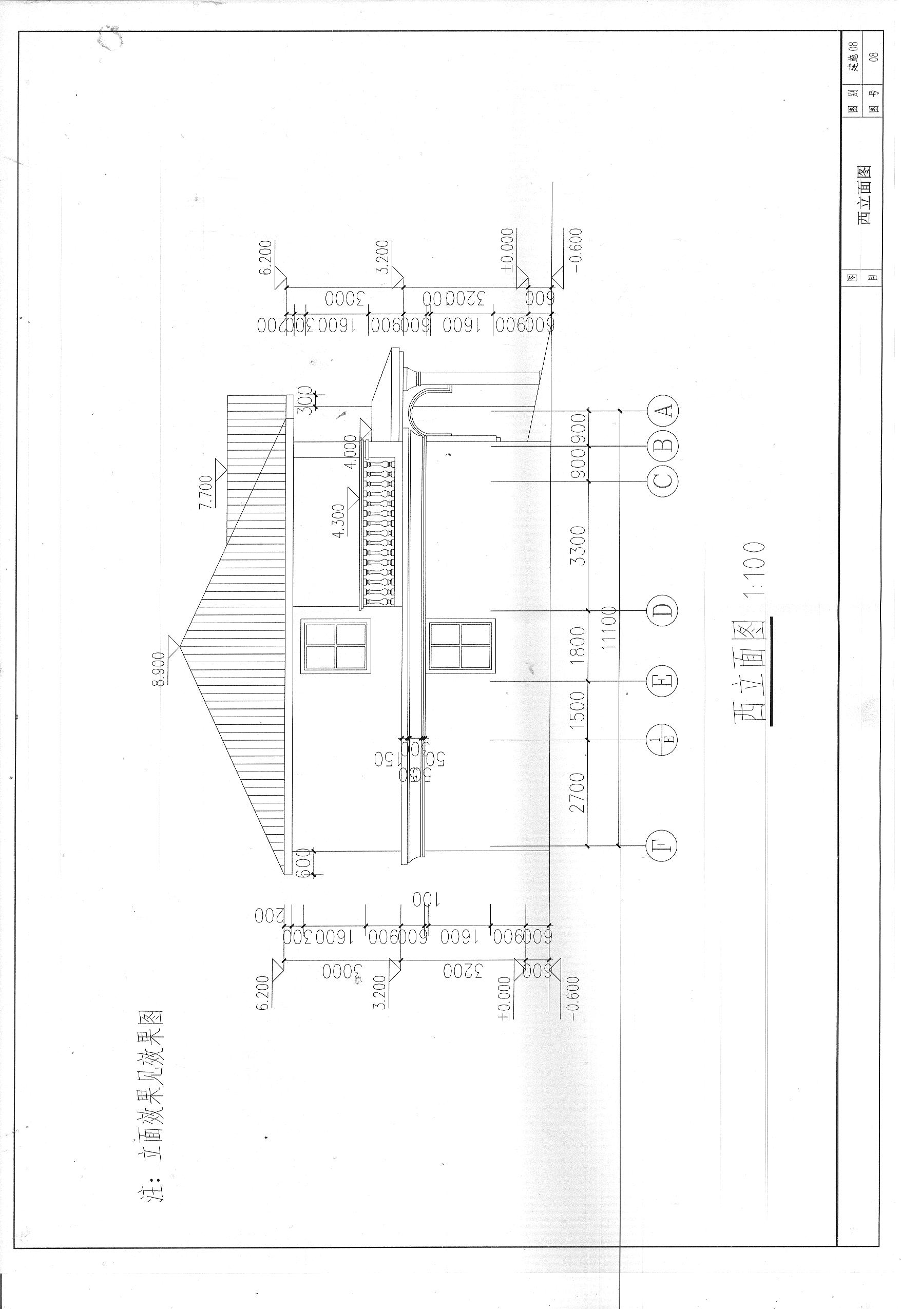
西立面图08.jpg
配电系统图29.jpg
您需要登录后才可以回帖 登录 | 立即注册

本版积分规则

Archiver|手机版|小黑屋|网站地图|我的植物 ( 京ICP备15066774号-2 )|网站地图

GMT+8, 2026-3-24 03:48 , Processed in 0.035147 second(s), 32 queries .

Powered by Discuz! X3.4

© 2001-2023 Discuz! Team.

快速回复 返回顶部 返回列表