我的植物

 找回密码
 立即注册

QQ登录

只需一步,快速开始

查看: 144|回复: 0

[别墅] H三层别墅图纸084

[复制链接]

8万

主题

55

回帖

7904

积分

管理员

Rank: 9Rank: 9Rank: 9

积分
7904
发表于 2023-11-4 17:51:00 | 显示全部楼层 |阅读模式
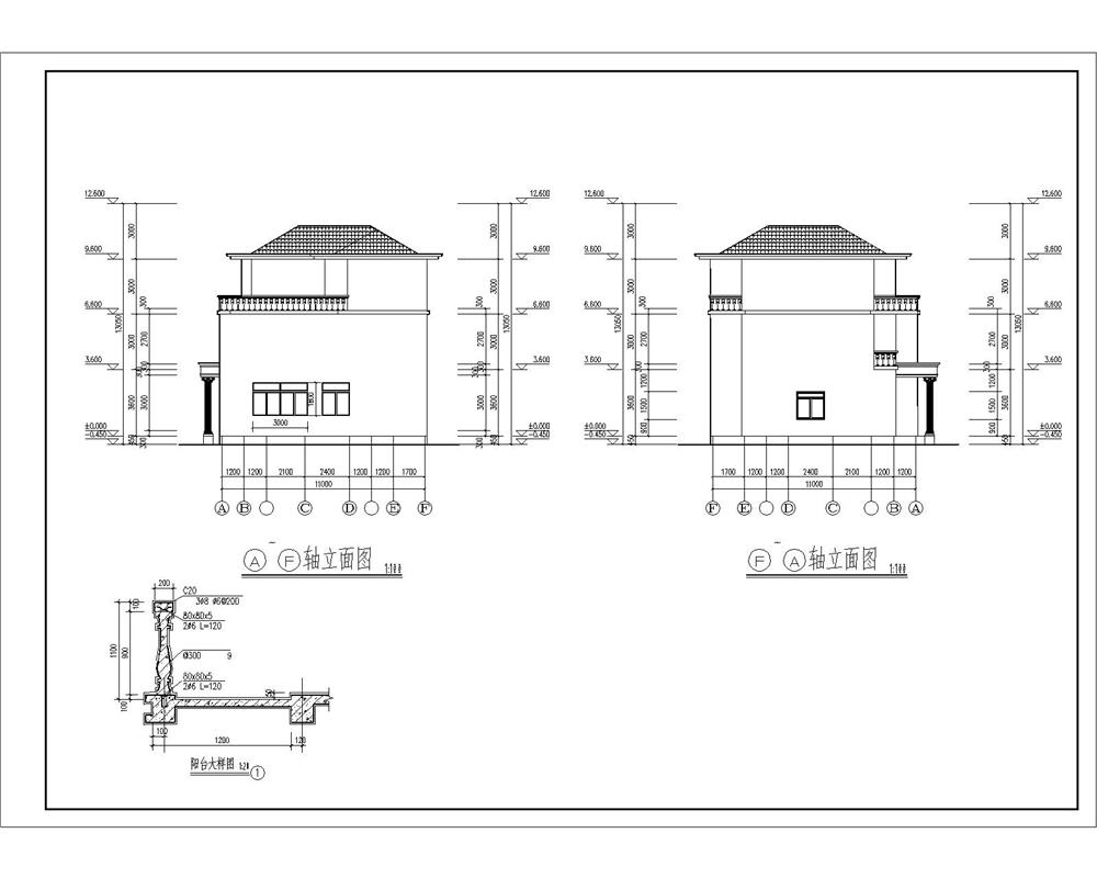
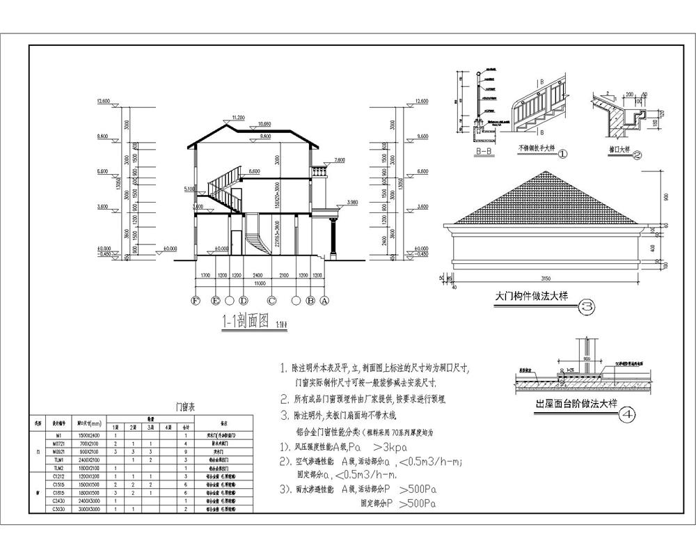
这是一套非常精致的农村房屋设计施工图(施工图是JPG的,无CAD施工图文件,介意的请不要拍,),附带效果图,建筑占地11.4米x11米,设计的很不错,值得借鉴参考!



这款由7张JPG施工图和一张效果图组成。


户型为单家独院式,占地面积150平米,总建筑面积410平米,总高度12.6米。一层设有客厅、餐厅、卧室、卫生间、佣人房、洗衣房;二层设有主卧室、起居室、卧室、卫生间、阳台;三层设有健身房、露台、阳台、卧室、卫生间及休息平台;本户型平面布置紧凑,采光通风良好,坡顶造型简洁,美观大方,色彩清新淡雅,具有浓郁的田园气息。
H三层别墅图纸0844.JPG
H三层别墅图纸0843.JPG
H三层别墅图纸0842.JPG
H三层别墅图纸0845.JPG
H三层别墅图纸0846.JPG
H三层别墅图纸0847.JPG
H三层别墅图纸0848.JPG
H三层别墅图纸0849.JPG
H三层别墅图纸084.JPG
您需要登录后才可以回帖 登录 | 立即注册

本版积分规则

Archiver|手机版|小黑屋|网站地图|我的植物 ( 京ICP备15066774号-2 )|网站地图

GMT+8, 2026-5-11 03:16 , Processed in 0.034250 second(s), 33 queries .

Powered by Discuz! X3.4

© 2001-2023 Discuz! Team.

快速回复 返回顶部 返回列表