我的植物

 找回密码
 立即注册

QQ登录

只需一步,快速开始

查看: 69|回复: 0

[别墅] H三层别墅图纸052

[复制链接]

8万

主题

52

回帖

7819

积分

管理员

Rank: 9Rank: 9Rank: 9

积分
7819
发表于 2023-11-4 17:51:37 | 显示全部楼层 |阅读模式
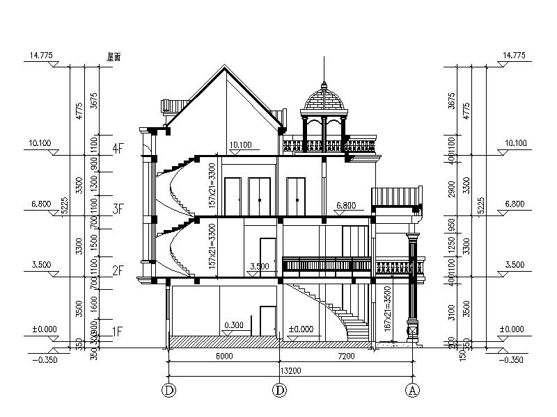
资料简介(某三层欧式度假别墅建筑施工图(含效果图))
关键词: 别墅建筑  欧式  度假

工程设计时间:  2009-02
图纸深度:  施工图
建筑面积:  528.15 平方米
用地面积:  180 平方米
建筑高度:  10.45 米
建筑层数:  3
效果图:  有
有无人防:  无

某三层欧式度假别墅建筑施工图(含效果图)——4张CAD

包含:设计说明、各层平面图、立面图、剖面图以及节点大样。

总开间X进深:门前15.5米 * 进深13.375米
结构形式:框架结构
抗震设防烈度:7度
合理使用年限:50年

本户型为3层欧式独栋别墅,占地面积180平方米,总建筑面积528.15平方米,框架结构,一层设有卧室、卫生间、客厅、餐厅、厨房、车库;二层设有主卧室、卧室2间、卫生间2间、2个大阳台;3层设3个卧室、大露台、4个卫生间;顶层是小阁楼;
本户型外观造型简洁大方,色彩明快,功能分区合理,房间尺度设计适宜,采光通风良好,富有时代气息。














H三层别墅图纸052.JPG
H三层别墅图纸0525.JPG
H三层别墅图纸0524.JPG
H三层别墅图纸0522.JPG
H三层别墅图纸0523.JPG
您需要登录后才可以回帖 登录 | 立即注册

本版积分规则

Archiver|手机版|小黑屋|网站地图|我的植物 ( 京ICP备15066774号-2 )|网站地图

GMT+8, 2026-3-24 15:52 , Processed in 0.034296 second(s), 33 queries .

Powered by Discuz! X3.4

© 2001-2023 Discuz! Team.

快速回复 返回顶部 返回列表