我的植物

 找回密码
 立即注册

QQ登录

只需一步,快速开始

查看: 106|回复: 0

[别墅] 多层别墅农村风格CAD源文件14

[复制链接]

8万

主题

55

回帖

7899

积分

管理员

Rank: 9Rank: 9Rank: 9

积分
7899
发表于 2023-11-4 20:12:49 | 显示全部楼层 |阅读模式
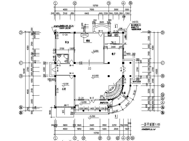
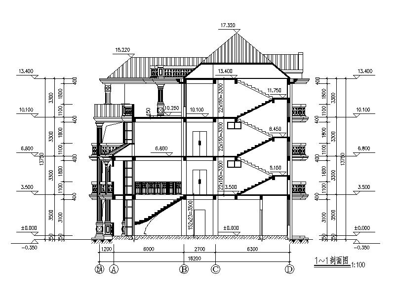
本户型是4层独栋别墅,框架结构,占地面积256.4平方米,总建筑面积816.85平方米,建筑高度13.4米。一层设有客厅、走廊、车库、卧室、卫生间、餐厅、厨房、佛龛;二层设有起居室、客厅上空、主卧室、卧室、卫生间、淋浴室、衣帽间、三个阳台;三层设有起居室、卧室2间、主卧室、衣帽间、卫生间、淋浴室、2个阳台;四层设有主卧、卧室、衣帽间、淋浴室、卫生间、2个阳台、一个大露台。

本户型采用蓝色玻璃瓦,色彩明快,外观造型高低错落,别致大方,采光通风良好,房间尺度设计适宜,空间利用率高,并富有时代气息。


门前宽15.7米*16.2米
1.jpg
2.jpg
3.jpg
4.jpg
别墅1.jpg
您需要登录后才可以回帖 登录 | 立即注册

本版积分规则

Archiver|手机版|小黑屋|网站地图|我的植物 ( 京ICP备15066774号-2 )|网站地图

GMT+8, 2026-5-10 07:11 , Processed in 0.032915 second(s), 33 queries .

Powered by Discuz! X3.4

© 2001-2023 Discuz! Team.

快速回复 返回顶部 返回列表