我的植物

 找回密码
 立即注册

QQ登录

只需一步,快速开始

查看: 187|回复: 0

[别墅] 多层别墅农村风格CAD源文件06

[复制链接]

8万

主题

55

回帖

7899

积分

管理员

Rank: 9Rank: 9Rank: 9

积分
7899
发表于 2023-11-4 20:13:14 | 显示全部楼层 |阅读模式
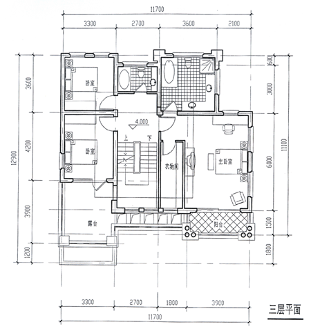
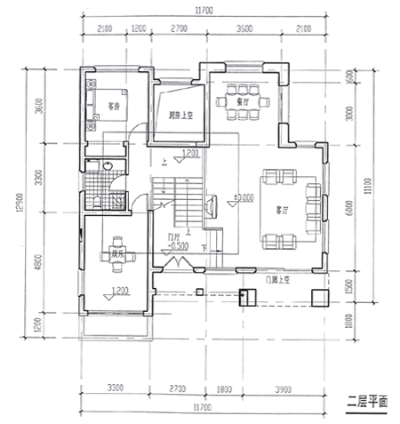
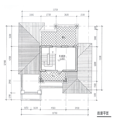
本户型是四层独栋别墅,占地面积11.7米*12.9米,一层设有门厅、车库、客厅、工人房、餐厅、厨房、花台、卫生间;二层设有娱乐室、客厅、餐厅、客房、卫生间;三层设有主卧室、衣物间、2间卧室、卫生间一大一小、露台;四层设有多功能房,露台、阳台。
bs305.gif
bs304.gif
bs302.gif
bs303.gif
bs301.gif
003.jpg
您需要登录后才可以回帖 登录 | 立即注册

本版积分规则

Archiver|手机版|小黑屋|网站地图|我的植物 ( 京ICP备15066774号-2 )|网站地图

GMT+8, 2026-5-10 07:10 , Processed in 0.034153 second(s), 34 queries .

Powered by Discuz! X3.4

© 2001-2023 Discuz! Team.

快速回复 返回顶部 返回列表